ファミーユ警固

5万円 管理/共益費 4,000円

福岡県福岡市中央区警固1丁目10-4

福岡市空港線「天神」駅徒歩17分

西鉄大牟田線「薬院」駅徒歩11分

福岡市空港線「赤坂」駅徒歩10分

価格
5万円 管理/共益費 4,000円
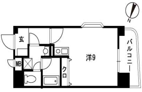
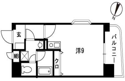
間取り/面積
1R/26.62㎡
所在地
福岡県福岡市中央区警固1丁目10-4
築年
1989年3月(築37年)
駐車
空有
交通

福岡市空港線天神」駅 徒歩17分

西鉄大牟田線薬院」駅 徒歩11分

福岡市空港線赤坂」駅 徒歩10分

ファミーユ警固の基本情報

物件名
ファミーユ警固
価格
5万円
管理/共益費
4,000円
築年月
1989年3月(築37年)
総戸数
55戸
所在地
福岡県福岡市中央区警固1丁目10-4
交通

福岡市空港線天神」駅 徒歩17分

西鉄大牟田線薬院」駅 徒歩11分

福岡市空港線赤坂」駅 徒歩10分

ファミーユ警固の詳細情報

設備条件
  • エレベーター
  • 駐輪場
  • バイク置場あり
  • インターネット対応
  • オートロック
設備(その他)
    -
駐車場/月額
空有/15,000円
用途地域
-
戸数
55戸 / -
取引態様
一般媒介
備考

お部屋について 一例
~ 担当者のコメント抜粋 ~

(601号室、1R)
●こちらは仲介手数料無料物件です。
浮いた初期費用で、家具や家電のご購入も出来ますね。
当社では仲介手数料の代わりに、消毒代や事務手数料を上乗せし、
請求するようなことは一切いたしません。
名ばかりの仲介手数料無料とは違い、確実にお客様の利益につながる独自のサービスです。お見積りだけでも構いませんので、是非お問合せくださいね.

週末には近所を散策するのが楽しみですね。
天神周辺で働く方には便利、
大名周辺が好きな方には嬉しい。
そんな人気エリア大名で新生活をはじめませんか。
是非お気軽にお問い合わせくださいませ。

ファミーユ警固のコメント(おすすめポイント)

天神駅 ファミーユ警固(2LDK)の賃貸物件情報です。地下鉄空港線『赤坂駅』徒歩10分(800m)。コンビニ徒歩3分(210m)。スーパー徒歩4分(300m)。人気エリアのフリーレント物件です!引っ越しの費用を抑えたい方必見。警固小学校の近くです。バイク置場がある点もポイントです。

ファミーユ警固で募集中の物件

  1. 901

    8.05坪 (26.62㎡)

    5万円(6211.18円/坪)

周辺施設

  • 秋本病院の画像

    内科

    秋本病院

    140m(2分)

  • セブンイレブン 大名1丁目店の画像

    コンビニエンスストア

    セブンイレブン 大名1丁目店

    214m(3分)

  • セブンイレブン 赤坂南店の画像

    コンビニエンスストア

    セブンイレブン 赤坂南店

    268m(4分)

  • セブン‐イレブン 福岡赤坂南店の画像

    コンビニエンスストア

    セブン‐イレブン 福岡赤坂南店

    269m(4分)

  • ボンラパス 薬院六つ角店の画像

    スーパー

    ボンラパス 薬院六つ角店

    295m(4分)

  • 中央警察署 警固交番の画像

    警察

    中央警察署 警固交番

    316m(4分)

  • ファミリーマート警固2丁目店の画像

    コンビニエンスストア

    ファミリーマート警固2丁目店

    333m(5分)

  • ドラッグイレブン 天神今泉店の画像

    ドラッグストア

    ドラッグイレブン 天神今泉店

    347m(5分)

  • ドラッグストアモリ 警固店の画像

    ドラッグストア

    ドラッグストアモリ 警固店

    351m(5分)

  • モスバーガー 赤坂けやき通り店の画像

    ファーストフード

    モスバーガー 赤坂けやき通り店

    407m(6分)

  • 福岡大名一郵便局の画像

    郵便局

    福岡大名一郵便局

    467m(6分)

  • 西日本シティ銀行 ATM けやき通りの画像

    銀行

    西日本シティ銀行 ATM けやき通り

    488m(7分)

  • 西日本シティ銀行・薬院支店の画像

    銀行

    西日本シティ銀行・薬院支店

    506m(7分)

  • 福岡銀行 けやき通り支店の画像

    銀行

    福岡銀行 けやき通り支店

    521m(7分)

  • サニー 警固店の画像

    スーパー

    サニー 警固店

    522m(7分)

  • 福岡赤坂郵便局の画像

    郵便局

    福岡赤坂郵便局

    538m(7分)

  • アップルストアの画像

    その他

    アップルストア

    566m(8分)

  • ドン・キホーテ 福岡天神本店の画像

    ディスカウントショップ

    ドン・キホーテ 福岡天神本店

    580m(8分)

  • ブックスキューブリックの画像

    書店

    ブックスキューブリック

    586m(8分)

  • サニー 赤坂店の画像

    スーパー

    サニー 赤坂店

    620m(8分)

  • 無印良品・天神大名店の画像

    生活雑貨店

    無印良品・天神大名店

    652m(9分)

  • 福岡市中央図書館の画像

    図書館

    福岡市中央図書館

    740m(10分)

  • ビックカメラ天神2号館の画像

    家電製品

    ビックカメラ天神2号館

    747m(10分)

  • 福岡市中央区役所の画像

    市役所・区役所

    福岡市中央区役所

    748m(10分)

  • 今泉公園の画像

    公園

    今泉公園

    860m(11分)

  • 警固公園の画像

    公園

    警固公園

    904m(12分)

近隣の物件

  1. 福岡市中央区荒戸1丁目

    1LDK (29.07㎡)

    7.6万円

  2. 福岡市中央区天神3丁目

    1DK (24.96㎡)

    6.5万円

  3. 福岡市中央区警固1丁目

    2DK (47.00㎡)

    8.2万円

  4. 福岡市中央区薬院3丁目

    1K (24.97㎡)

    5.5万円

よく見られている物件

  1. 福岡市中央区今川2丁目

    1LDK (29.24㎡)

    8.2万円

  2. 福岡市中央区平尾2丁目

    1LDK (29.70㎡)

    6.7万円

  3. 福岡市中央区平尾2丁目

    1LDK (37.80㎡)

    8.5万円

  4. 福岡市中央区荒戸1丁目

    1LDK (29.07㎡)

    7.6万円

ファミーユ警固

お気軽にお問い合わせください

LINEからお問い合わせ 無料お問い合わせ

株式会社Emon

092-707-2149

平日 10:00~19:00 土日祝 10:00~16:00

(休:水曜日)