いちご天神シティビル

238.66万円 (4.4万円/坪) 管理/共益費 -

福岡県福岡市中央区天神2丁目7-14

福岡市空港線「天神」駅徒歩6分

福岡市空港線「赤坂」駅徒歩7分

価格
238.66万円(4.4万円/坪) 管理/共益費 -
面積
54.24坪(179.31㎡)
所在地
福岡県福岡市中央区天神2丁目7-14
築年
1984年10月(築41年)
駐車
-
交通

福岡市空港線天神」駅 徒歩6分

福岡市空港線赤坂」駅 徒歩7分

いちご天神シティビルの基本情報

物件名
いちご天神シティビル
価格
238.66万円(4.4万円/坪)
管理/共益費
-
築年月
1984年10月(築41年)
所在地
福岡県福岡市中央区天神2丁目7-14
交通

福岡市空港線天神」駅 徒歩6分

福岡市空港線赤坂」駅 徒歩7分

いちご天神シティビルの詳細情報

設備条件
  • エレベーター
駐車場/月額
-/-
取引態様
一般媒介
備考
天神駅 赤坂駅 西通り沿い路面 1階店舗 いちご天神シティビルの賃貸物件情報です。天神西通り沿い1階路面店、グランドホテルが目の前!大名小跡地開発もあり、注目のエリアです!

いちご天神シティビルのコメント(おすすめポイント)

天神駅 赤坂駅 西通り沿い路面 1階店舗 いちご天神シティビルの賃貸物件情報です。天神西通り沿い1階路面店、グランドホテルが目の前!大名小跡地開発もあり、注目のエリアです!

いちご天神シティビルで募集中の物件

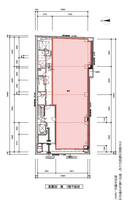
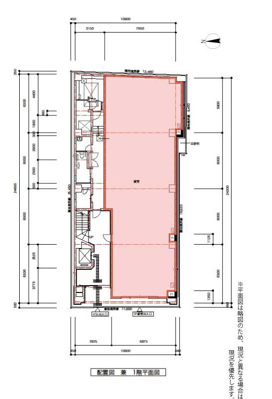
  1. 1階

    54.24坪 (179.31㎡)

    238.66万円(44000円/坪)

周辺施設

  • 一風堂 西通り店の画像

    ラーメン

    一風堂 西通り店

    167m(3分)

  • 岩田屋本店の画像

    デパート

    岩田屋本店

    214m(3分)

  • スターバックスコーヒー 天神西通り店の画像

    喫茶店・カフェ

    スターバックスコーヒー 天神西通り店

    263m(4分)

  • 無印良品・天神大名店の画像

    生活雑貨店

    無印良品・天神大名店

    298m(4分)

  • アップルストアの画像

    その他

    アップルストア

    414m(6分)

  • 警固公園の画像

    公園

    警固公園

    474m(6分)

  • ビックカメラ天神2号館の画像

    家電製品

    ビックカメラ天神2号館

    480m(6分)

近隣の物件

  1. 福岡市中央区大名2丁目

    - (31.39㎡)

    12.53万円(1.32万円/坪)

  2. 福岡市中央区赤坂1丁目

    - (49.44㎡)

    14.48万円(0.97万円/坪)

  3. 福岡市中央区大名1丁目

    - (135.86㎡)

    35.51万円(0.86万円/坪)

  4. 福岡市中央区大名1丁目

    - (32.78㎡)

    16.36万円(1.65万円/坪)

よく見られている物件

  1. 福岡市中央区大名1丁目

    - (16.42㎡)

    6.6万円

  2. 福岡市南区長丘4丁目

    - (82.50㎡)

    22万円

  3. 福岡市中央区大名1丁目

    - (135.86㎡)

    35.51万円

  4. 福岡市中央区今泉1丁目

    - (625.90㎡)

    770万円

いちご天神シティビル

お気軽にお問い合わせください

LINEからお問い合わせ 無料お問い合わせ

株式会社Emon

092-707-2149

平日 10:00~19:00 土日祝 10:00~16:00

(休:水曜日)